Diseño, montaje y auditoria
INGENIERÍA Y DISEÑO
Fire Protech brinda soluciones integrales en ingeniería, equipamiento y servicios destinados a la seguridad y protección contra incendios.
INGENIERÍA | Montaje de sistemas llave en mano.
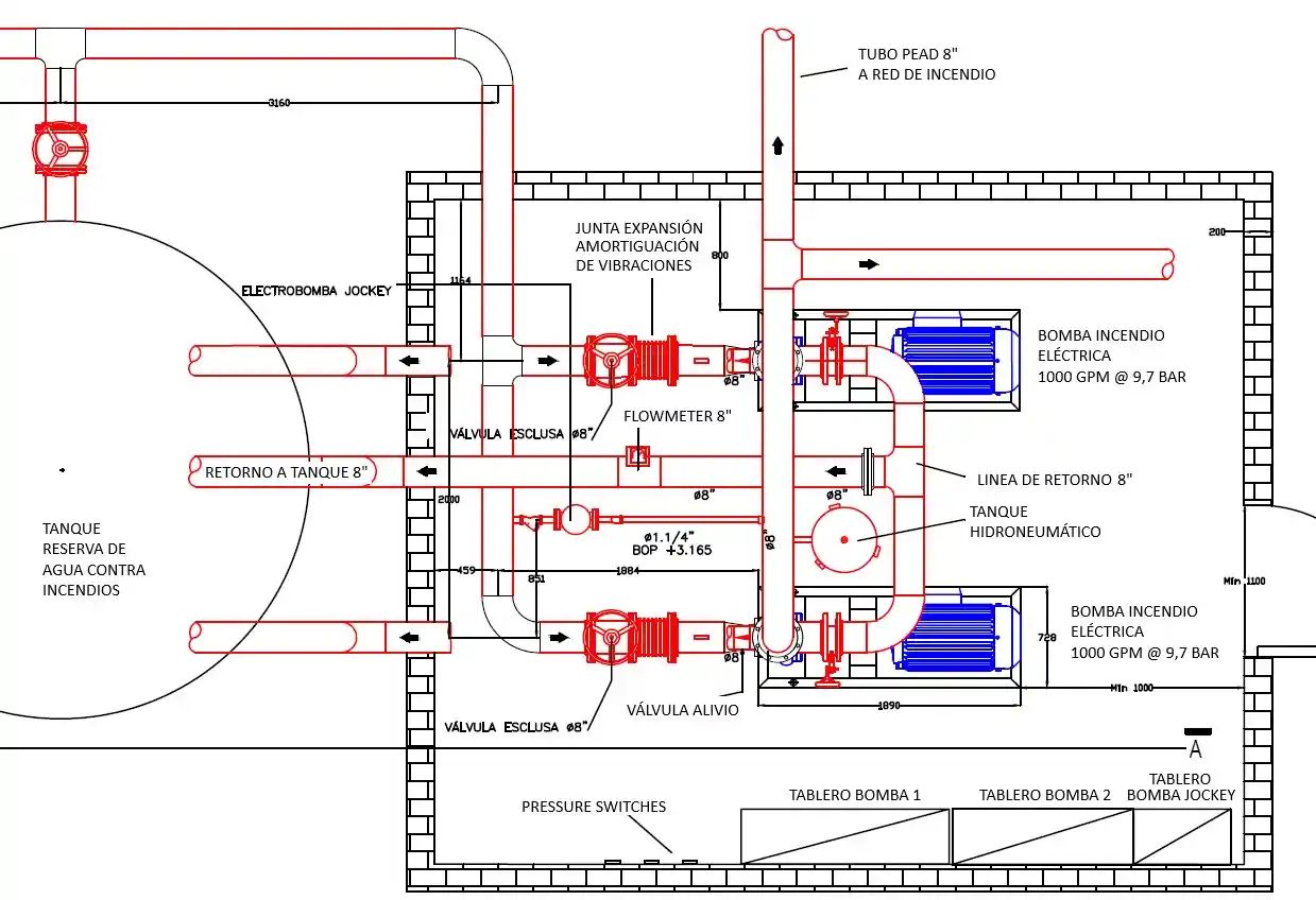
Desde la adaptación de sistemas ya instalados hasta el desarrollo de soluciones integrales de protección contra incendios, contamos con experiencia en todo tipo de tecnologías: sistemas de extinción por agua, agua-espuma o gases, así como equipos de bombeo y detección.
INGENIERÍA | Auditoría
Entre los servicios que ofrecemos a nuestros clientes se incluye la auditoría de instalaciones y sistemas de protección contra incendios ya existentes.






